
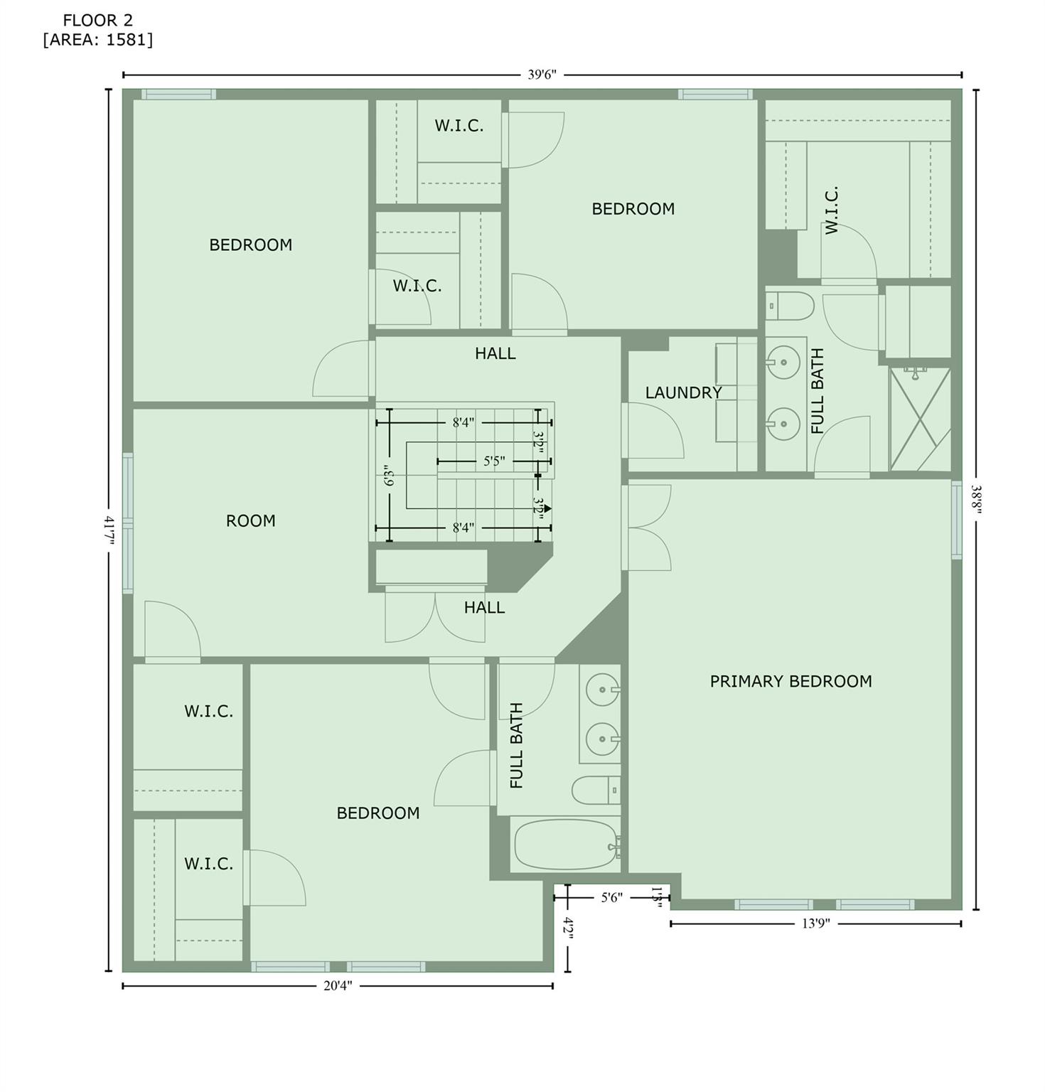
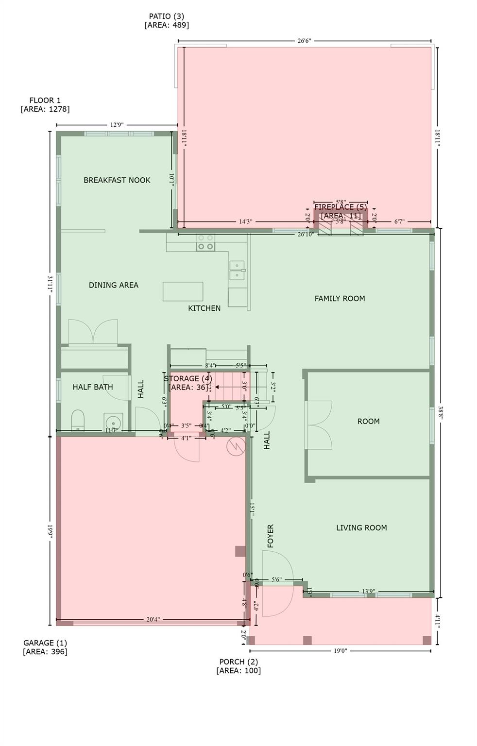
Beautiful 2-story home in Woodridge featuring 4 bedrooms and 2.5 baths with over 2,900 sq ft. The main level offers a welcoming flow with a spacious great room and gas fireplace, a sunroom filled with natural light, and a kitchen with island and stainless appliances that opens to the breakfast area and dining room. Recent updates include new hardwood floors throughout the downstairs, a freshly added office with French doors, and stylish new tile in the primary bathroom, all completed in 2024. The home also features a new roof installed in 2024, a new water heater and microwave in 2025, and a new HVAC condenser unit added around 2021, ensuring modern comfort and efficiency. Upstairs, the generous primary suite is joined by three additional bedrooms, a full bath, and laundry. A convenient central vacuum system is installed for ease of upkeep. Outside, the spacious lot enjoys pond views, while the patio provides a private outdoor retreat. An attached two-car garage, along with neighborhood sidewalks, pond, and streetlights, creates an inviting community close to area shops, dining, and everyday conveniences.
| MLS # | 4298395 |
|---|---|
| Listing Type | For Sale |
| Style | House |
| HOA Dues | $122 |
| Sub-Type | Resale |
| Status | Active |
| Year | 2007 |
| Days On Site | 68 |
| Listing Provided By | EXP Realty LLC | John Adams |
| Bed(s) | 4 |
|---|---|
| Bath(s) | 3 Total |
| SQ Feet | 2,859 |
| Parking Cap | 2 |
| Story(s) | 2 |
| Zoning | AR-5 |
| Acreage | 0.18 |
| Property View | Water |
| Cooling | Ceiling Fan(s), Central Air, Electric |
|---|---|
| Heating | Central, ENERGY STAR Qualified Equipment, Natural Gas, Sealed Combustion Fireplace |
| Interior Features | Attic Stairs Pulldown, Central Vacuum, Kitchen Island, Open Floorplan, Walk-In Closet(s) |
| Window Features | Insulated Window(s) |
| Appliances | Dishwasher, Gas Range, Gas Water Heater, Microwave, Plumbed For Ice Maker |
| Exterior Features | Other - See Remarks |
|---|---|
| Roof | Shingle |
| Security Features | Smoke Detector(s) |
| Construction Materials | Vinyl |
| Foundation Details | Slab |
| Lot Features | Pond(s) |
| Garage Yes / No | Yes |
|---|---|
| Parking Features | Driveway, Attached Garage, Garage Door Opener, Garage Faces Front, Keypad Entry |
| Utilities | Cable Available, Natural Gas, Underground Power Lines, Underground Utilities, Wired Internet Available |
|---|
| Community Features | Pond, Sidewalks, Street Lights |
|---|
| List Aor | Canopy Realtor Association |
|---|
| Property | 322300 |
|---|
| State | NC |
|---|---|
| County | Union |
| City | Matthews |
| Zip Code | 28104 |
| Area | Union |
| Community Name | Woodridge |
| School District | Porter Ridge |
| Elementary School | Stallings |
| High School | Porter Ridge |
| State | NC |
|---|---|
| County | Union |
| City | Matthews |
| Zip Code | 28104 |
| Area | Union |
| Community Name | Woodridge |
| School District | Porter Ridge |
| Elementary School | Stallings |
| High School | Porter Ridge |